• 小学校まで徒歩3分!スーパーも近く、子育て世代におススメの立地です。
人物イラスト
  • 小学校まで徒歩3分!スーパーも近く、子育て世代におススメの立地です。

最終更新日:2025/12/28

物件情報

Property Information

分譲
公開中

ピンアイコン 熊本市 西区

《城山小学校まで徒歩3分》西区城山大塘1丁目3号棟・建売住宅

面積アイコン面積
敷地/ 37.78坪
建物/ 31.99坪
校区アイコン校区
城山小学校・三和中学校
間取りアイコン間取り
5LDK
駐車場アイコン駐車場
2台分

熊本市西区城山大塘1丁目13-23

3,498

万円
(税込)

支払アイコン

月々のお支払い例

※土地・建物・外構・消費税含む

頭金
98万円
ボーナス払い
106,880円 (年2回)
借入額
3,400万円
月額
68,590
  • 市中地方銀行提携ローン40年返済
  • 変動金利型優遇タイプ金利1.025%使用の場合
    ※借入期間中は店頭基準金利から2.100%を優遇
  • 適用される金利は、融資実行日の金利となりますので表示の金利とは異なる場合があります。
    上記金利は2025年12月1日現在のものです。
  • 諸費用は別途申し受けます。
    ※金利はお客様によって異なる場合があります。
実際に見てみたい 矢印

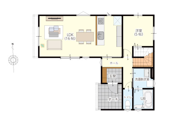
間取り図

Floor Plan

注目ポイント

Key Points

Point.01

書斎や寝室に最適!

しっかりした書斎が欲しい方や、将来的にはご夫婦の寝室にも使える1階のお部屋です。

Point.02

広い空間でゆったりくつろげる

主寝室に最適な8帖の洋室。
ウォークインクローゼットもあるので
収納力もバッチリのお部屋です。

この建売物件を見学したい 矢印

詳細情報

Detailed Information

所在地
熊本市西区城山大塘1丁目13-23 外部リンクアイコン Google マップで見る 矢印
敷地概要
  • 電力九州電力
  • 水道公営水道
  • ガス個別プロパン
  • 排水〈汚水・雑排水〉公共下水〈雨水排水〉側溝排水
建物の仕様
  • 構造木造軸組工法/べた基礎
  • 保証地盤保証20年
  • 断熱仕様断熱性能等級5/ZEH水準
設備・仕様
  • リビングエアコン
  • 浴室暖房乾燥機
  • 温水洗浄便座トイレ
取引形態
  • 代理

近隣施設

Nearby Facilities

教育施設アイコン 教育施設

城山小学校
徒歩3分(約190m)
三和中学校
徒歩18分(約1,400m)
城山幼稚園
徒歩3分(約200m)
城高保育園
徒歩7分(約500m)

商業施設アイコン 商業施設

ゆめマート城山
徒歩4分(約300m)
セブンイレブン熊本城山半田店
徒歩8分(約600m)

医療機関アイコン 医療機関

三和クリニック
車2分(約800m)
上代成城病院
車4分(約2,400m)

公共施設アイコン 公共施設

JR「熊本」駅
車8分(約4,300m)
九州産交バス「稲荷入口」バス停
徒歩2分(約400m)
高橋郵便局
徒歩10分(約800m)
肥後銀行稲荷前支店
徒歩3分(約230m)

レジャー施設アイコン レジャー施設

城山公園
徒歩11分(約850m)
高橋稲荷神社
徒歩5分(約400m)

キャンペーン情報

キャンペーン画像 キャンペーン画像

・前日17時までのご予約で、Amazonギフトカード10,000円分
・前日17時以降~当日のご予約は、Amazonギフトカード5,000円分

【キャンペーン・特典に関する注意事項】
本キャンペーンはTAKASUGI株式会社による提供です。お問い合わせはTAKASUGI株式会社 熊本本社(0120-69-3771)までお願いいたします。
Amazon、Amazon.co.jpおよびそれらのロゴはAmazon.com, Inc. またはその関連会社の商標です。
ご来場当日に本人確認書類のご提出をお願いする場合があります。
複数の物件にご来場いただいても、プレゼントのお渡しは1回限りとなります。他のキャンペーンとの併用はできません。
【進呈条件】
①初めてタカスギのモデルハウス、分譲地にご来場される方
②熊本県内で1年以内にマイホームを建築予定、または建売住宅を購入予定の方
③事前の内容確認のご連絡に対応いただけた方。
④ご夫婦またはご家族(成人2名以上)でご来場いただける方
⑤モデルハウスや分譲地をご見学のうえ、アンケートにご記入いただいた方
⑥他の住宅会社で申込済・ご契約済でない方
本ページの予約フォームからご予約いただき、上記の1~6の項目の条件をすべて満たした方限定の来場特典です。このキャンペーンは予告なく変更、もしくは、終了する場合があります。
※ ご来場当日に本人確認書類のご提出をお願いする場合があります。
※ 複数の物件にご来場いただいても、来場プレゼントのお渡しは1回限りとなります。
※ 他のキャンペーンとの併用はできません。

  • 1F 間取り図
  • 2F 間取り図
閉じる ×アイコン
電話アイコン 電話でお問い合わせ この物件を見学予約 矢印
閉じる

見学予約専用ダイヤル

0120-229-661

受付時間/10:00~18:00 ※定休:火・水

総合お問い合わせ(電話窓口)

0120-69-3771

受付時間/10:00~18:00 ※定休:火・水