公開中
熊本市 北区
《家事ラク動線》北区梶尾町(2期)3号棟・建売住宅
面積
- 敷地/ 175.39㎡(53.05坪)
建物/ 108.28㎡(32.75坪)
校区
- 北部東小学校・北部中学校
間取り
- 4LDK
駐車場
- 2台分
熊本市北区梶尾町1359-39
販売価格
2,729
万円
(税込)
最終更新日:2026/4/5
Property Information
熊本市 北区
熊本市北区梶尾町1359-39
販売価格
2,729
万円
(税込)
※土地・建物・外構・消費税含む

《ご成約特典》
\新生活応援!家電30万円分を進呈/
本物件限定で、令和8年4月末までにご成約いただいた方へ、提携のベスト電器でお好きな家電をプレゼントします。
■当社HPから直接お問合せの方限定です
■他の値引きやサービスとの併用はできません
■消費税、配送、標準設置費を含めた総額です
その他条件など、詳細はスタッフまでお問合せください
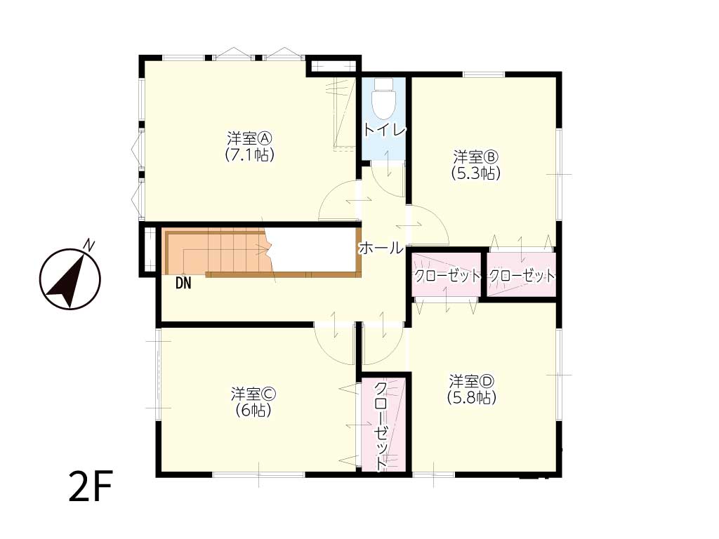
Floor Plan
Key Points
Point.01
玄関収納やホール横の物入、キッチン横の収納など、生活動線に沿って「使う場所に収納がある」ので片付けもラクラク
Point.02
4つの個室とトイレを効率よく配置しており、家族一人ひとりがプライベートな時間をゆったり過ごせる機能的なレイアウト
Detailed Information
Nearby Facilities
【WEB予約・来場特典】全国のゆめタウン・ゆめマート等、イズミグループ各店でご利用いただける商品券をプレゼント!
【進呈条件】
ご予約フォームよりご予約のうえ、以下の条件をすべて満たす方に限り、特典をご進呈いたします。
①タカスギへのご来場が初めての方
②ご夫婦とご両親など、ご家族(成人2名以上) でご来場いただける方
③スムーズなご案内のため、事前の電話でのヒアリングにご協力いただける方
④現地にてご見学およびアンケートへご回答いただける方
⑤他社様での契約・申込済みではない方
⑥予約フォームの入力内容に不備がない方
【ご注意事項】
※特典のお渡しは1家族様1回限りとさせていただきます(複数物件へご来場の場合も同様です)。
※特典は後日、手渡しにてお渡しいたします。
※他キャンペーンとの併用はできません。
※本キャンペーンは予告なく変更・終了する場合がございます。