• 【18帖LDK】シューズクローク・パントリー・ファミクロ完備!適材適所の収納で部屋が広く使える3LDK
人物イラスト
  • 【18帖LDK】シューズクローク・パントリー・ファミクロ完備!適材適所の収納で部屋が広く使える3LDK

最終更新日:2026/5/7

物件情報

Property Information

分譲
公開中

ピンアイコン 宇土市

《クレストタウン宇土新松原》 5号地・デザイナーズ分譲住宅

面積アイコン面積
敷地/171.34㎡(51.83坪)
建物/102.68㎡(31.06坪)
校区アイコン校区
宇土東小学校・鶴城中学校
間取りアイコン間取り
3LDK
駐車場アイコン駐車場
3台分

宇土市新松原町字佐野免174番7

3,654

万円
(税込)

支払アイコン

月々のお支払い例

※土地・建物・外構・消費税含む

頭金
54万円
ボーナス払い
111,973円 (年2回)
借入額
3,600万円
月額
77,158
  • 市中地方銀行提携ローン40年返済
  • 変動金利型優遇タイプ金利1.275%使用の場合
    ※借入期間中は店頭基準金利から2.50%を優遇
  • 適用される金利は、融資実行日の金利となりますので表示の金利とは異なる場合があります。
    上記金利は2026年4月1日現在のものです。
  • 諸費用は別途申し受けます。
    ※金利はお客様によって異なる場合があります。
実際に見てみたい 矢印

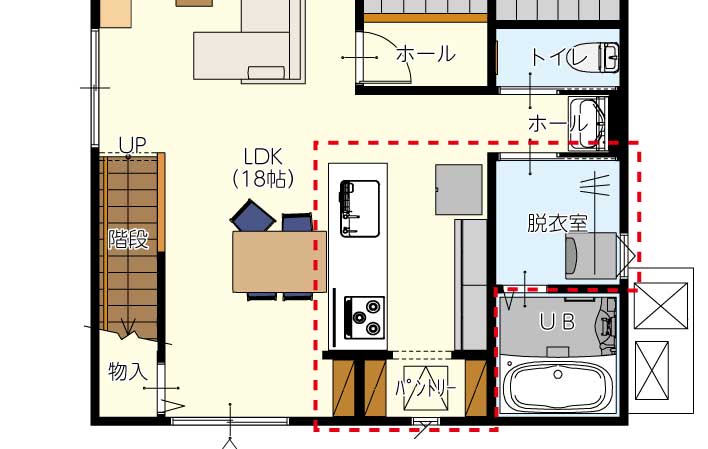
間取り図

Floor Plan

注目ポイント

Key Points

Point.01

料理も、お片付けも、すべてがこの数歩の中で完結する。

毎日の家事は、見えない「歩数」の積み重ねです。この家のキッチンは、振り返れば大容量のパントリー。日用品のストックから調理家電まで、生活感をすべて隠しながらサッと取り出せます。さらに水回りへのアクセスも良好。

Point.02

18帖のゆとりと「リビング階段」

家の中心となる18帖のLDKは、広々とした空間に明るい光が差し込む家族の憩いの場。そして最大の特徴は「リビング階段」です。2階の自分の部屋に行くときも、必ずリビングを通る設計。

Point.03

適材適所の特大収納

この家は2階に大きな「ファミリークローゼット」と「ウォークインクローゼット」を完備しています。季節の衣類や思い出の品など、かさばるものはすべてここに。1階にもシューズクロークや階段下収納を備え、「使う場所のすぐそばに、しまう場所がある」ストレスフリーな毎日を実現

この建売物件を見学したい 矢印

詳細情報

Detailed Information

所在地
宇土市新松原町字佐野免174番7 外部リンクアイコン Google マップで見る 矢印
敷地概要
  • 電力九州電力
  • 水道公営水道
  • ガス個別プロパン(オール電化)
  • 排水〈汚水・雑排水〉公共下水〈雨水排水〉側溝排水
建物の仕様
  • 構造木造軸組工法/100年腐らない木「緑の柱」採用(ハウスガードシステム)/省令準耐火
  • 保証保証/ 建物保証20年/住宅設備保証10年/地盤保証20年/定期点検20年/腐朽・白蟻保証10年(最長20年)
  • 断熱仕様断熱性能等級5/ZEH水準
  • 外壁旭化成建材純正 37mmALC外壁材「ヘーベルパワーボードNEXT」
  • 建築確認番号第202518680号
設備・仕様
  • ソファ・リビングテーブル
  • ダイニングテーブルセット
  • 全室ウィンドウトリートメント
  • 全室照明
  • リビング・寝室エアコン
  • オール電化
  • 食器洗い乾燥機
  • カップボード
  • 浴室暖房乾燥機
  • 温水洗浄便座トイレ
取引形態
  • 売主

近隣施設

Nearby Facilities

教育施設アイコン 教育施設

ひかり保育園
徒歩10分(約800m)
宇土東保育園
徒歩13分(約1,000m)
宇土東小学校
徒歩15分(約1,200m)
鶴城中学校
徒歩15分(約1,200m)

商業施設アイコン 商業施設

マックスバリュ 宇土店
車1分(約550m)
ドラッグストアコスモス 宇土駅店
車1分(約400m)
ローソン 宇土新松原町店
徒歩3分(約240m)

医療機関アイコン 医療機関

松田内科循環器科クリニック
車2分(約650m)
かなもり地域ケアクリニック
車2分(約750m)
宇土中央クリニック
車3分(約1,300m)

公共施設アイコン 公共施設

宇土市役所
車2分(約1,200m)
宇土駅前郵便局
車2分(約650m)

交通機関アイコン 交通機関

JR九州鹿児島本線「宇土」駅
徒歩9分(約650m)
九州産交バス「宇土駅前」バス停
徒歩9分(約700m)

レジャー施設アイコン レジャー施設

宇土駅前公園
徒歩10分(約800m)

キャンペーン情報

キャンペーン画像 キャンペーン画像

【WEB予約・来場特典】全国のゆめタウン・ゆめマート等、イズミグループ各店でご利用いただける商品券をプレゼント!

【進呈条件】
ご予約フォームよりご予約のうえ、以下の条件をすべて満たす方に限り、特典をご進呈いたします。

①タカスギへのご来場が初めての方
②ご夫婦とご両親など、ご家族(成人2名以上) でご来場いただける方
③スムーズなご案内のため、事前の電話でのヒアリングにご協力いただける方
④現地にてご見学およびアンケートへご回答いただける方
⑤他社様での契約・申込済みではない方
⑥予約フォームの入力内容に不備がない方

【ご注意事項】
※特典のお渡しは1家族様1回限りとさせていただきます(複数物件へご来場の場合も同様です)。
※特典は後日、手渡しにてお渡しいたします。
※他キャンペーンとの併用はできません。
※本キャンペーンは予告なく変更・終了する場合がございます。

  • 1F 間取り図
  • 2F 間取り図
閉じる ×アイコン
電話アイコン 電話でお問い合わせ この物件を見学予約 矢印
閉じる

見学予約専用ダイヤル

0120-229-661

受付時間/10:00~18:00 ※定休:火・水

総合お問い合わせ(電話窓口)

0120-69-3771

受付時間/10:00~18:00 ※定休:火・水